Volver
SOLICITAR VISITA
REFERENCIA: 1937/210 - Piso en venta en Castellana / Madrid (Madrid).
- Precio de Venta: 2.890.000 €
Lujo y comodidad en Madrid
Esta propiedad privilegiada en el prestigioso barrio de Salamanca ofrece una oportunidad única de inversión en una de las zonas más exclusivas de Madrid. Ubicada en la calle de Castelló en el barrio de Castellana, combina una ubicación privilegiada con una excelente conectividad, rodeada de servicios de lujo y una vibrante oferta cultural y de ocio. La constante revalorización de las propiedades en la zona asegura una inversión rentable a largo plazo.
La propiedad se distingue por sus vistas despejadas hacia el exterior y cuenta con comodidades excepcionales, como un garaje en la misma finca y múltiples ascensores, incluyendo un montacargas. Con solo dos vecinos por planta, ofrece privacidad y exclusividad, ideales para familias y profesionales que buscan calidad de vida en el corazón de Madrid.
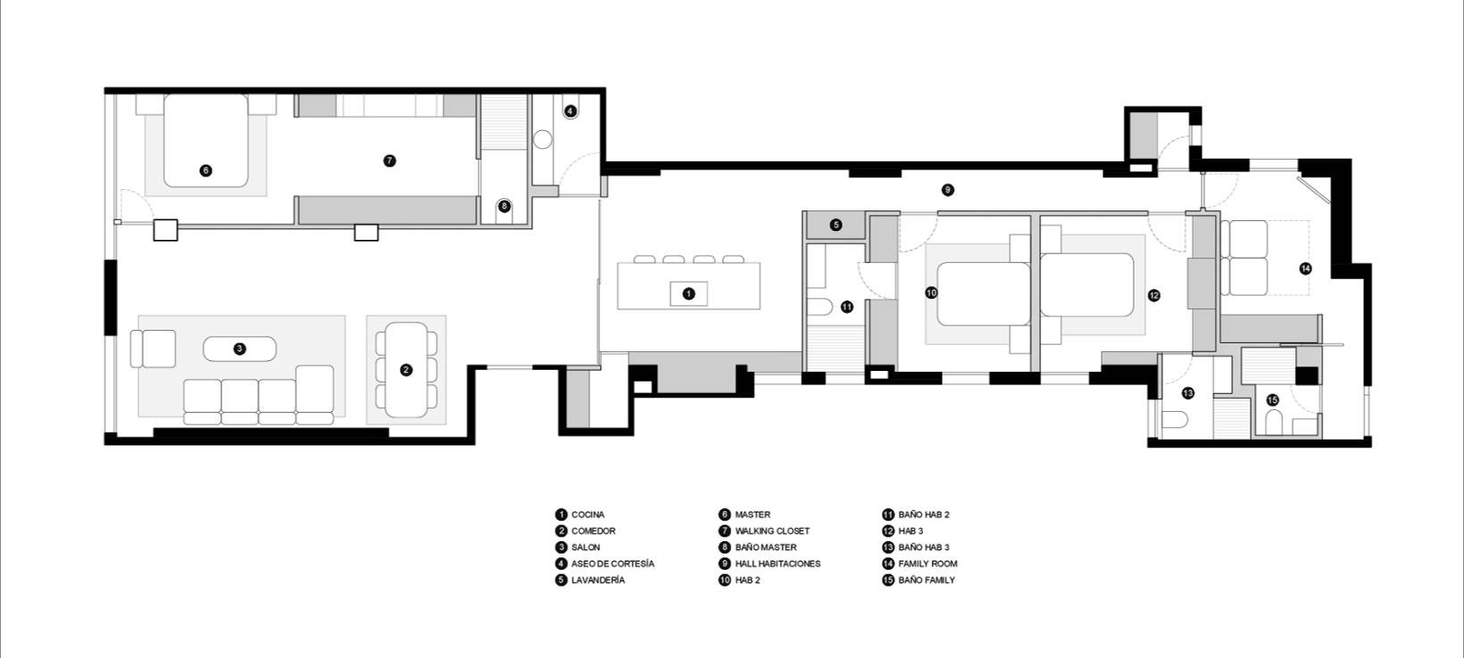
Se entrega reformado y amueblado, con una configuración de tres dormitorios, todos ellos con baño en suite, siendo el dormitorio principal totalmente exterior. Además dispone de una estancia extra que puede ser despacho, dormitorio de invitados, sala de TV, también con baño en suite. Cuenta además con un aseo de cortesía.
Ascensores en muy buen estado y montacargas de acceso a los trasteros.
Portero muy activo y con buena imagen.
Servicio de recogida de basuras en piso (puerta de servicio)
Plaza de aparcamiento de gran tamaño y buen acceso a ella.
Trastero en la azotea.
Esta propiedad privilegiada en el prestigioso barrio de Salamanca ofrece una oportunidad única de inversión en una de las zonas más exclusivas de Madrid. Ubicada en la calle de Castelló en el barrio de Castellana, combina una ubicación privilegiada con una excelente conectividad, rodeada de servicios de lujo y una vibrante oferta cultural y de ocio. La constante revalorización de las propiedades en la zona asegura una inversión rentable a largo plazo.
La propiedad se distingue por sus vistas despejadas hacia el exterior y cuenta con comodidades excepcionales, como un garaje en la misma finca y múltiples ascensores, incluyendo un montacargas. Con solo dos vecinos por planta, ofrece privacidad y exclusividad, ideales para familias y profesionales que buscan calidad de vida en el corazón de Madrid.
Se entrega reformado y amueblado, con una configuración de tres dormitorios, todos ellos con baño en suite, siendo el dormitorio principal totalmente exterior. Además dispone de una estancia extra que puede ser despacho, dormitorio de invitados, sala de TV, también con baño en suite. Cuenta además con un aseo de cortesía.
Ascensores en muy buen estado y montacargas de acceso a los trasteros.
Portero muy activo y con buena imagen.
Servicio de recogida de basuras en piso (puerta de servicio)
Plaza de aparcamiento de gran tamaño y buen acceso a ella.
Trastero en la azotea.
- Calificación consumo de energía: En trámite.
- Piso: planta 6.
- Plantas edificio: 7.
- Año de construcción: 1.966.
- Área total construida: 276 m2.
- Área total útil: 173 m2.
- Habitaciones: 4.
- Baños: 3.
- Armarios empotrados: 3.
- Plazas de parking: 1.
- Ascensores: 3.
- Estado de conservación: reforma a estrenar.
- Tipo calefacción: central.
- Agua caliente: central.
- Aire acondicionado: frío/calor.
- Interior/exterior: interior.
- Orientación: oeste.
- Amueblado: cocina amueblada.
- Comunidad: 330 €.
- IBI: 2.300 €.
- Equipamiento: conserje, trastero.
- Puertas: madera barnizada.
- Ventanas: doble cristal.
- Suelos: tarima.
Datos de contacto
- Oficina: 1937 - Alfa Reina
- Teléfonos: 653 774 927
- Whatsapp: 653 774 927
- Email: [email protected]
- Web: alfareina.com
SOLICITAR VISITA
Localización
Hoja informativa. No incluidos gastos de Escrituración, Registro e Impuestos.
La oficina 1937, Avda. Ciudad de Barcelona 59 (Madrid - Madrid) con nombre fiscal Joaquín López de la Reina García Abadillo y CIF: 71215748-C
es responsable de los datos e información publicitados de este inmueble.
La oficina 1937, Avda. Ciudad de Barcelona 59 (Madrid - Madrid) con nombre fiscal Joaquín López de la Reina García Abadillo y CIF: 71215748-C
es responsable de los datos e información publicitados de este inmueble.






















